[PERIZIA] Villa bifamiliare - Monterico (VR)


Data lavori:
2020 - 2020
Committente:
privato
Prestazioni:
consulenza tecnica
Località:
Monterico (VR)


Siamo stati contattati da parte di un'impresa edile / immobiliare amica della proprietà, la quale ci ha evidenziato alcune criticità lamentate e che elenchiamo qui di seguito:
  • disconfort termico locale "sala giochi"
  • gestione climatizzazione locale "cantina vini"
  • surriscaldamento locali sottotetto
  • valutazione inserimento nuove finestre per tetti in copertura


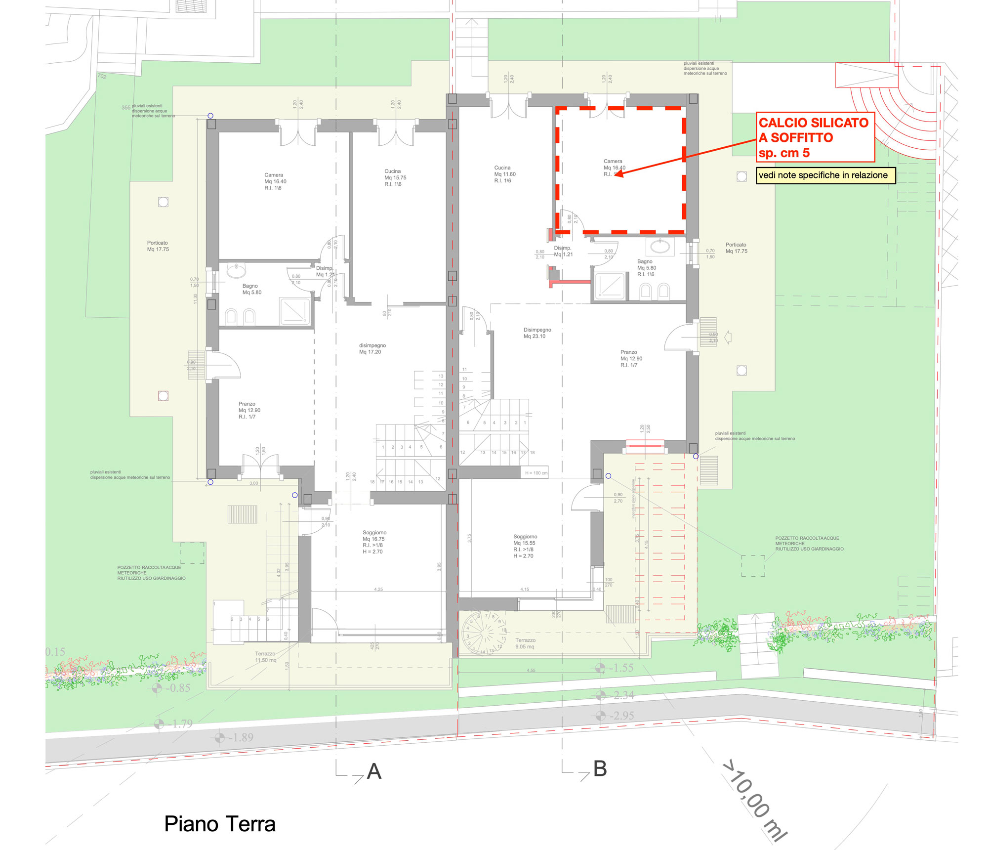
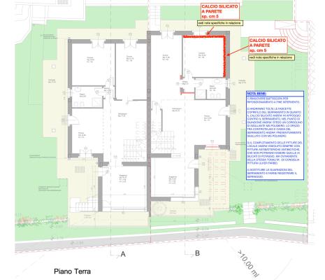
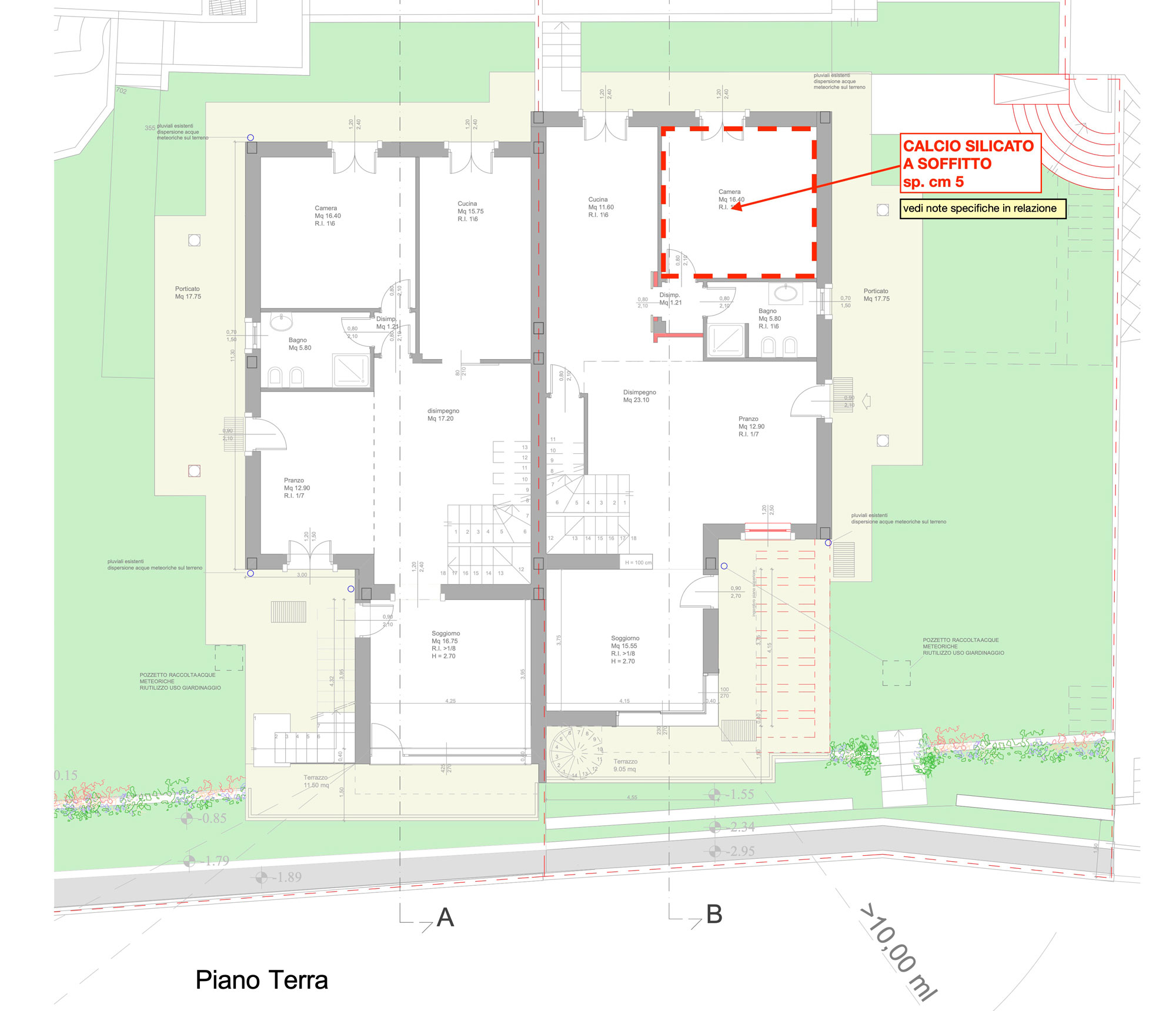
Il nostro Team si è occupato di un primo sopralluogo conoscitivo, della progettazione degli interventi di mitigazione inclusa la stesura di una relazione tecnica particolareggiata, dalla quali potrai vedere qualche immagine caricata qui sopra.
Contattaci
ho letto l’informativa sulla privacy.